The design was a collaborative effort. Mark Sova of Main Street Builders worked out a smart initial floor plan, and I crafted the exterior imagery suggesting just a few plan revisions. Mark worked with the home buyers to develop the interior decorative theme. The result is a snappy modest home that I would characterize as an eclectic farmhouse. Below are a few images.
Tuesday, March 6, 2012
Red Barn House on Display
One of the homes we have designed over at ron brenner architects is currently showing during the Twin Cities Parade of Homes. If you have the time - and you are in the Twin Cities area check out model number 239 at 10138 Tapestry Bend in Lake Elmo. I think the house exemplifies charming country living.
The design was a collaborative effort. Mark Sova of Main Street Builders worked out a smart initial floor plan, and I crafted the exterior imagery suggesting just a few plan revisions. Mark worked with the home buyers to develop the interior decorative theme. The result is a snappy modest home that I would characterize as an eclectic farmhouse. Below are a few images.
The design was a collaborative effort. Mark Sova of Main Street Builders worked out a smart initial floor plan, and I crafted the exterior imagery suggesting just a few plan revisions. Mark worked with the home buyers to develop the interior decorative theme. The result is a snappy modest home that I would characterize as an eclectic farmhouse. Below are a few images.
Friday, March 2, 2012
Stillwater Craftsman - Ridiculously Good!
We have had a flurry of interest and activity for our Stillwater Craftsman recently. Seems to me it might be appropriate timing to discuss what makes this home design so darn good. Here are a few highlights:
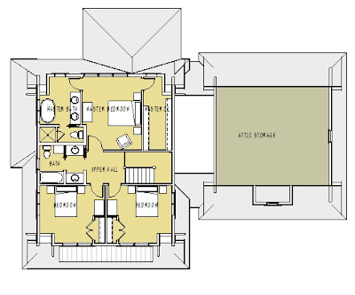
- It's smart and efficient. A really great new floor plan at just under 2100 square feet.
- It's darn cute
- It's adaptable
- Great mudroom
- Open but intimate living spaces
- It's 3d
The proof is in the pudding. Take a look below.
![]() |
| Three right sized bedrooms including Owners Suite. |
You can't say this is not cute! Just the right amount of ornament - not too spare and not over the top decorative.
Open floor plan while remaining intimate. Ingenious!
If you want to see more of this home design just go ahead and visit the following link at Simply Elegant Home Designs: Stillwater Craftsman
Subscribe to:
Comments (Atom)



